Caterpillar Схемы деталей/узлов
Каталоги
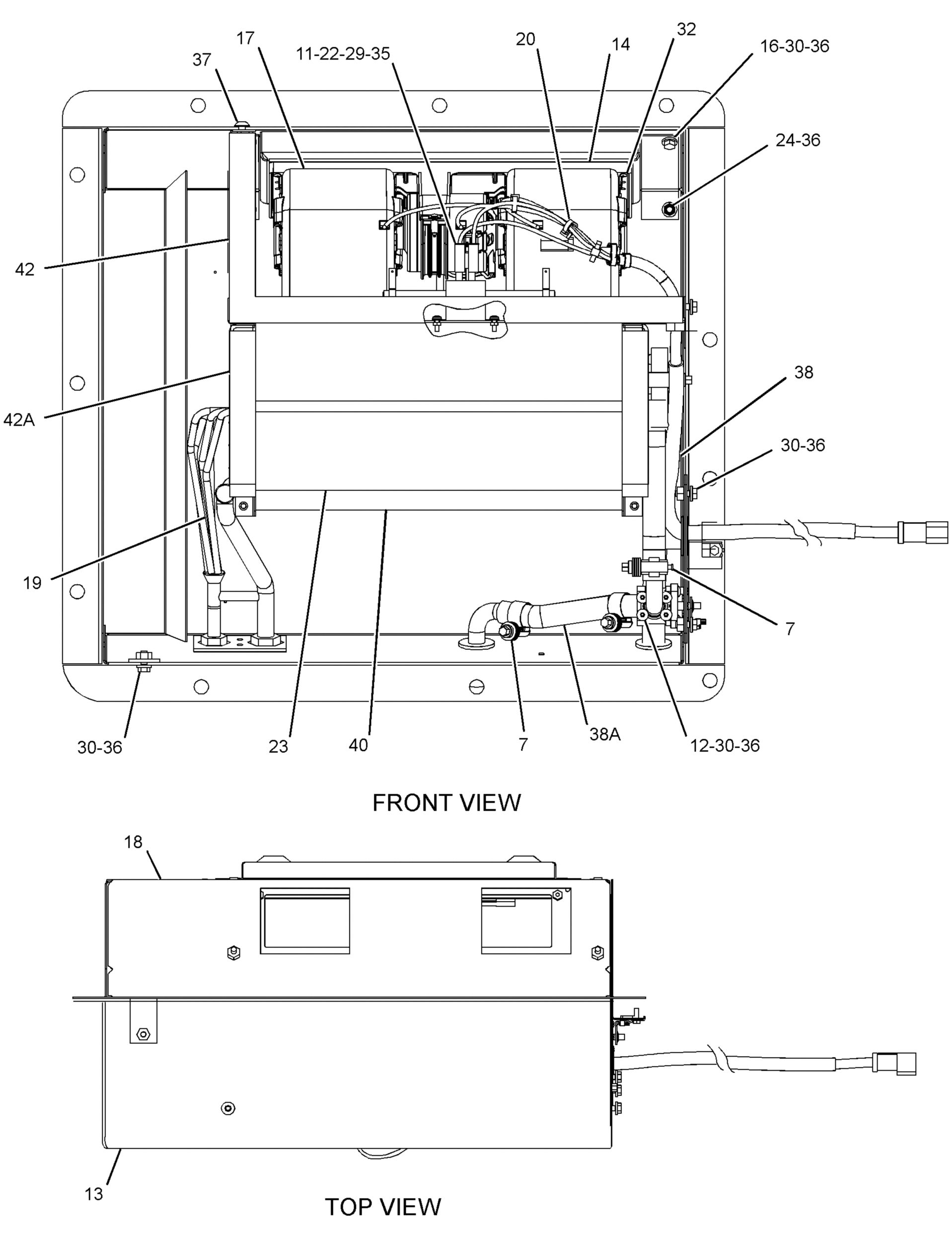
Блок кондиционера-воздух

333-2741: Блок кондиционера-воздух

Блок кондиционера воздуха Cat® (базовый)


Заинтересовал товар?

Имя

Почта

Комментарий

Схема

Не найдено

Описание для номера по каталогу 333-2741

Описание.
Кондиционер Cat обеспечивает комфортные условия для водителя, подавая теплый или холодный свежий отфильтрованный воздух в кабину водителя в тяжелой прочной технике Cat. Компоненты Cat обеспечивают работу оборудования на оптимальном уровне.

Характеристики.
• Полная система ОВКВ.
• Устройство ОВКВ включает в себя кондиционер со змеевиком и вентилятором в сборе, жгутом проводов с разъемом, клапаном и крепежными элементами.
• Качественная конструкция.
• Система обогрева и вентиляции для тяжелых условий эксплуатации.

Применение.
Кондиционеры применяются для поддержания комфортных условий работы для водителя в суровых условиях работы техники Cat, предназначенной для тяжелых условий эксплуатации. Более подробную информацию можно найти в руководстве по техническому обслуживанию или запросить у ближайшего дилера компании Cat.

WarningOutline Предупреждение: При использовании этого изделия можно подвергнуться воздействию различных химических веществ, включая свинец и соединения свинца, которые, как установлено в штате Калифорния, вызывают рак и врожденные дефекты или другие нарушения репродуктивной функции. Дополнительную информацию см. на веб-сайте www.P65Warnings.ca.gov.

Технические характеристики номера по каталогу 333-2741

  • Габаритная ширина (мм): 711

  • Габаритная длина (дюймы): 33

  • Общая высота (дюймы): 22,5

  • Габаритная длина (мм): 838

  • Общая высота (мм): 571

  • Габаритная ширина (дюймы): 28

  • Material: Carbon Steel

Совместимые модели для номера по каталогу 333-2741

INTEGRATED TOOLCARRIER

IT28G

WHEEL LOADER

928G 928HZ 924G 930H 924GZ 924HZ 930G